魁北克 Le Clocher Penché 餐厅,新旧之间找到平衡
Le Clocher Penché是魁北克著名的美食餐厅,由事务所APPAREIL Architecture负责改造。业主想要既能体现餐厅烹饪创意精髓、又大胆且经典的空间。设计团队重新设计了从厨房到酒吧区域的整个空间,包括桌椅布局和餐厅美学。设计的关键在于新旧之间找到平衡,既尊重场所的历史,又融合能够体现这家餐厅灵魂的现代元素。这里最初是一家银行,1916年就存在于此,餐厅的现有地面和线脚都是原来的。充足的光线通过巨大的窗户照进室内,突显出木质墙裙和白色墙壁的对比,二者形成的经典氛围体现了过去的场所精神,餐厅同时结合灯具、水磨石桌子和长椅等现代元素,使其融入当今时代。
▼ 新旧融合的空间

设计团队将厨房置于餐厅中央,使其向用餐区域开放,以便厨师与顾客交流并且优化服务动线。厨房作为餐厅的心脏,被展示性的结构环绕,象征餐厅的美食形象。酒吧原来靠近门厅,现已移至后方,这样便于移动并且使房间更加舒适。设计团队的想法是创造不同的区域和氛围,使顾客在不同的座位区具有不同的体验。入口区域设有长长的弧形座椅,提供更加亲密和围合的体验感。主要用餐区域的长座椅使顾客可以观看厨房景象、体验餐厅内更加活跃且友好的氛围。
▼ 入口区域

▼ 弧形座椅提供更加亲密和围合的体验感

▼ 从入口望向餐厅

▼ 厨房向用餐区域开放

▼ 主要用餐区域

▼ 酒吧区域

▼ 不同的座位区



设计团队与工匠合作,创造出定制的家具和部件,例如由Jacques和Anna手工制作的碟状陶瓷灯。APPAREIL Architecture事务所的工业设计师Justine Dumas表示:“Le Clocher Penché餐厅一直强调工艺品,我们在空间中也有同样的追求。这使餐厅立刻变得非常独特并且具有魁北克风格。”
▼ 家具细部


新的餐厅空间脱离了传统餐馆的单色调美学,在整体色彩上更多地融入北欧特征。森林绿中融合了橙木、棕色调以及当地的赤褐色。APPAREIL Architecture设计的餐厅强调创意、本土产品和工艺品,体现了展示当地文化的真诚设计。
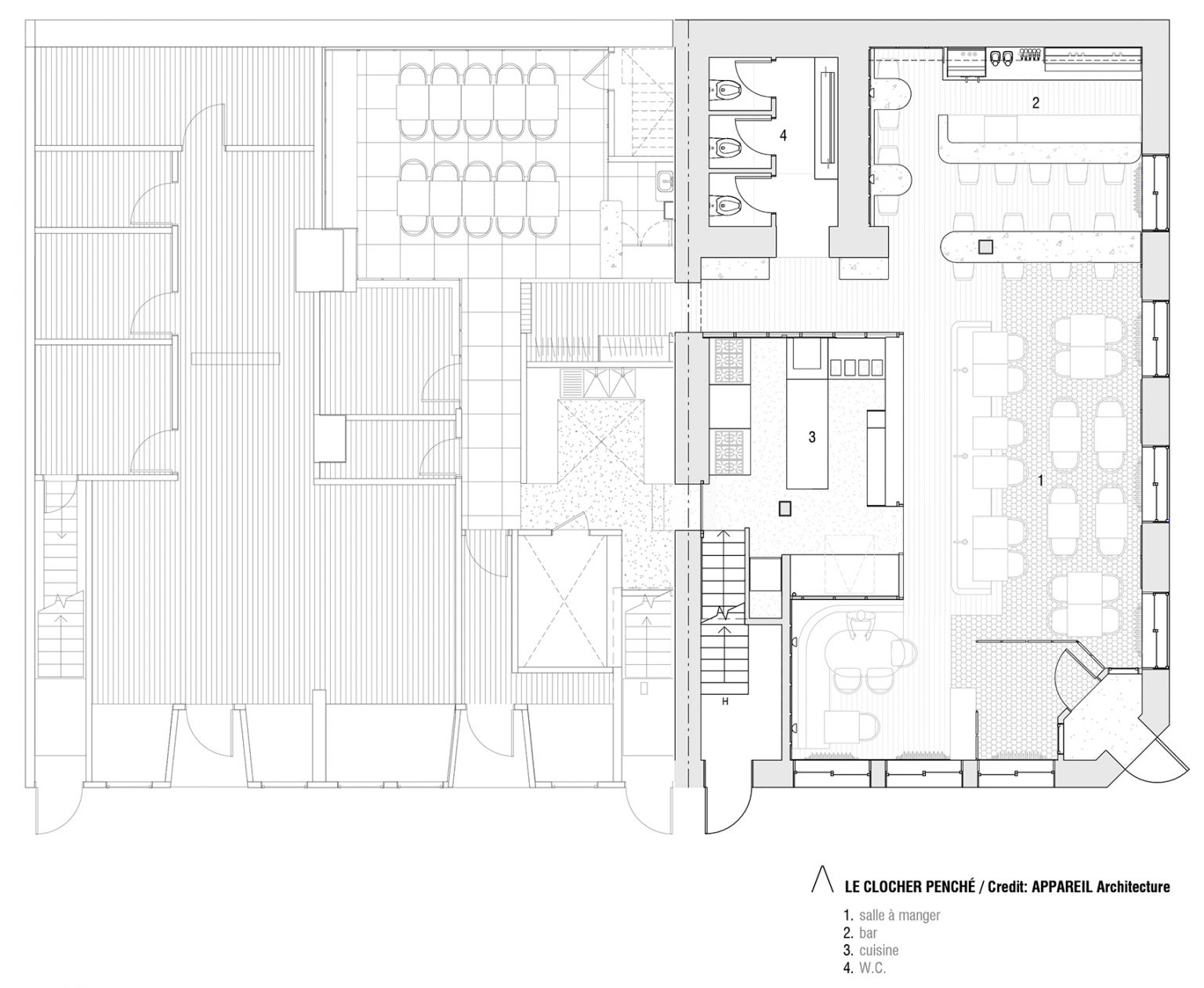
▼ 平面图

项目名称:Le Clocher Penché餐厅
项目类型:餐饮空间
项目地址:加拿大 魁北克
设计公司:APPAREIL Architecture
家具木工:Fabrica
灯光设计:Jacques & Anna
主要材料:木材、瓷砖、木地板、水磨石、涂料、金属、白色乳胶漆、长虹玻璃、镜面
项目摄影:Félix Michaud
好设计网 www.haoooo.cn 欢迎投稿:infohaoooo@163.com
好设计网 www.haoooo.cn欢迎投稿:infohaoooo@163.com
