Ayvalaan 别墅 ,Paz Arquitectura
Paz Arquitectura / 摄影师 Andres Asturias / 瓜地马拉
2015-10-29
Ayalaan别墅属于一对新婚夫妇,他们一起扶养之前婚姻所生的孩子,偶尔还去危地马拉。别墅取名于这对夫妇最初在荷兰一起生活时的街道名。
















这所房子建在危地马拉市郊区,位于一个为喜欢马文化的开发项目内。该设计利用了周围的山谷来建立与马术世界的联系。

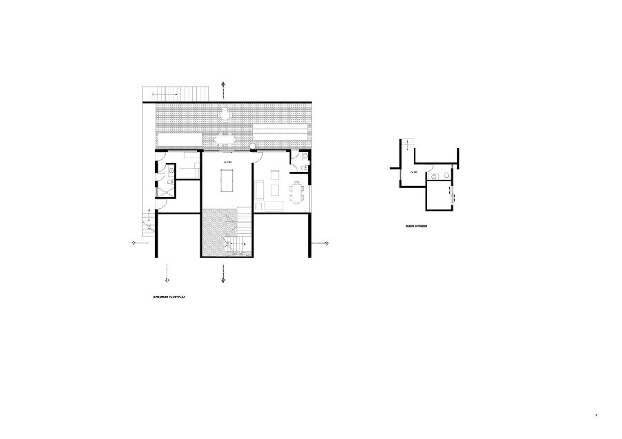
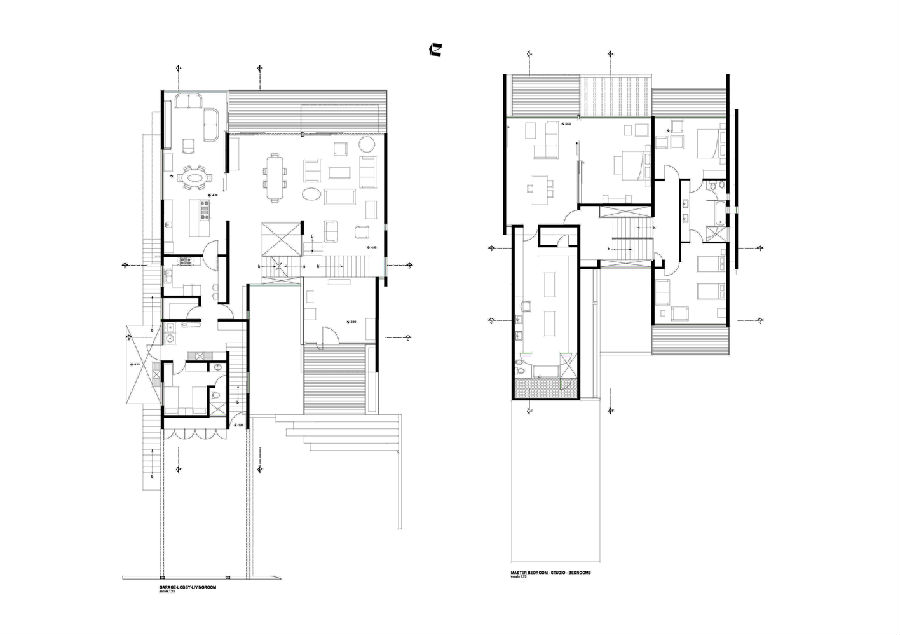
在结构上,房子结合了砖墙和混凝土结构,形成了精致的建造系统,表达了不同阶段的功能。所用的主要材料是木材、露石混凝土、玻璃和金属框架。

根据设计,房屋在陡峭的地形上被分成几个部分。低处,有屋主的办公室和一个与地面直接相连的小型家庭空间。中间是开放式区域,客厅、餐厅以及开放式厨房整合在了一起,以便将烹饪和社交活动紧密连接。
















好设计网 www.haoooo.cn 欢迎投稿:infohaoooo@163.com
好设计网 www.haoooo.cn欢迎投稿:infohaoooo@163.com
