日本的意大利餐厅 Falo,独特的“木洞穴”空间
Mosaic Design / 日本 东京
2017-07-30
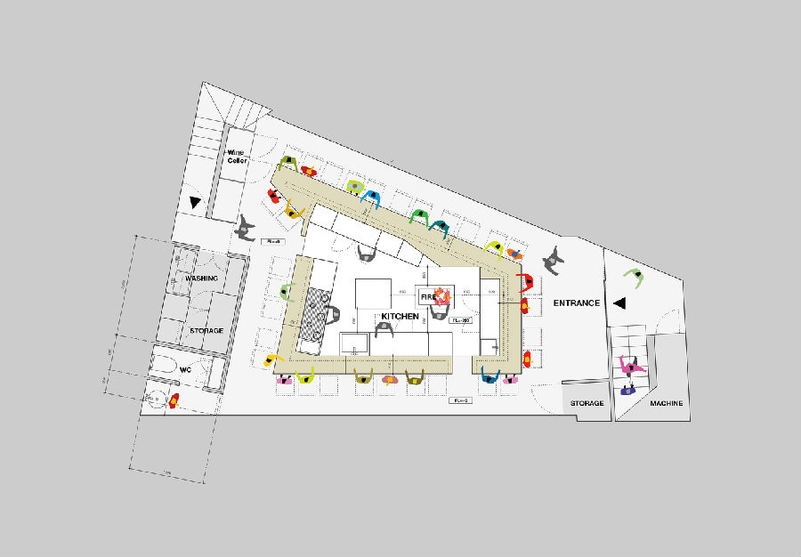
这个由 Mosaic Design 设计的餐厅位于日本东京代官山,是一个主要使用烧烤架的新型意大利餐厅。 餐厅只在用餐区的中心有一个大柜台围饶着烧烤区。 柜台的异形设计让每个座位都朝向中心烧烤区,这样顾客就能看到厨师在那里烤肉。 这样的设计不仅能让餐厅有一种整体感,还有座位朝向的多样性。有些座位靠近火炉,有些靠近厨师,而角落的座位则通过柜台的特殊造型创造出5-6人的桌面用餐空间。 柜台的设计不仅是为客人,也考虑到了厨房。它为客人和烧烤区提供了适当的距离,避免厨房内产生死角,同时还在桌子上创造了展示的空间。



天花板也被设计成异形以朝向中心烧烤区,将客人的注意力自然地引导到中心烧烤区,并且覆盖了天花板内的排风管和设备。 由于建筑结构的限制,餐厅不可能拥有创造高天花板的空间,所以转而通过控制天花板的形状和地板的高度使空间舒适。



然而,只有在洗手间里,才有可能设计有高天花板的空间。添加的艺术品则能为客人创造空间的对比和小小的惊喜。








餐厅使用了使用木质纤维板作为异形的低天花板和墙壁。作为餐厅的一大特色,它创造了如“木洞穴”般的独特室内空间,表达了这家餐厅的原始概念——“意大利烧烤与火”。
好设计网 www.haoooo.cn 欢迎投稿:infohaoooo@163.com
好设计网 www.haoooo.cn欢迎投稿:infohaoooo@163.com
