印度北安恰尔邦的小型酒店,可远眺喜马拉雅山脉壮丽景色
这是一座位于北安恰尔邦的小型酒店,位于阿尔莫拉镇附近的Kaser devi村,海拔约1600米左右。酒店以它所在的区域位置命名,取名为‘kumaon’ ,象征着该区域内的山川,峡谷,森林和美丽的湖泊。从主路上下来。沿着一条有点陡峭的小径向下走就可以到达酒店。 村庄内部道路在距离场地250米的地方就不再铺设,剩下的得这一段则通过一条狭窄的乡村小道与基地连通。于是在两条道路的交接点上你会遇到为你接风洗尘的工作人员,他们会为你搬运行李和箱子,让你以愉悦的心情走过剩下的一小段路途。当然你也可以选择骑小马。

斜坡式的场地内被平整成台地的形状,与该区域内传统的农耕用地形态相似。场地被分成两个部分,其中场地顶部是一小块半英亩的用地,用来设置后勤设备用房;另有一块两英亩的用地再次被一块狭长的共用土地分割开来。这片土地的独特之处在于,它可以毫无遮挡地看到下方山谷和300公里外喜马拉雅山脉在印度境内的壮丽景色。

该方案中设置有10个客房、休息室、餐饮设施、图书馆、水疗中心和服务中心。我们决定成对的进行房间设计,一个放在另一个上面,把它们分散在不同的地点。这在一定程度上减少建筑面积,减少酒店的总占地面积。底层客房是用从附近采石场开采来的石头建造的,而上层的房间则采用粉煤灰砖砌墙,然后用一片片竹捆扎包裹墙面,创造出一种轻盈感。


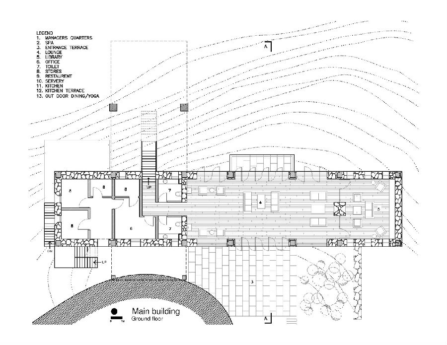
主楼位于场地的最高点处,首层平面内设置有主入口大厅、休息室、图书馆、卫生间和行政设施等。二层平面中排布有巨大的钢悬挑的餐厅,其轴向全视角观景点直面几百公里之外的印度第二高峰,“南达戴维峰”。 屋顶上的休息平台是一处用于户外就餐和瑜伽的露台。

此外,餐厅的三侧立面都采用竹材捆扎的形式进行立面装饰,以减缓庞大的钢结构对视觉造成的冲击感。通往这家旅馆的路是从人行道上的一个小门进去的,人行道朝向主休息室铺设,形成游客的第一个入口空间。入口处有一排特意栽种的竹子,用来遮蔽远处的客房体量,虚化远处的山峦视线,进而增强游客们的期待感。

项目中从地板到门窗都广泛使用了当地出产的松木。甚至家具都是在现场设计和制造的。建造过程中还邀请了当地的工匠为客房打造铜材和石材的构件。阿尔莫拉镇有着优良的纺织传统,因此客房内的全羊毛纺织床上用品和家具都是定制设计并采用当地技艺生产出来的。整体的饰面装饰都透露出一种质朴的感觉,强有力地突出地方材料性。混凝土的吊顶保持未涂灰泥的状态,粉煤灰墙体同样也是旨在内侧进行了一层饰面粉刷。在客房内,床、桌子和座椅都被设计为一个个小岛的形式并以光滑的混凝土作为饰面。卫生间的墙则是以黑色石头切成的瓷砖做成的。



而露台和阳台都采用“kota”进行铺面,这是一种印度流行而廉价的花岗岩材料,具有水泥的质地和光滑质感。通过在场地上以分散的形式设置体量并以竹材作为立面的手法,事务所可以有效在这样一个敏感的自然环境中降解建筑物所形成的视觉影响。所有的建筑物都可以进行雨水收集,排水系统会把手机来的雨水送到场地底部的一个大型水箱内。酒店计划在台地上和剩余空间中种植季节性作物,再将收获的作物送至厨房做成饭菜。总的来说,我们的设计重点是突出迷人的自然景观,强化壮阔的山景景致。同时向当地的材料、传统和文化致敬。


▲ 总平面图

▲ 主楼一层平面图

▲ 主楼二层平面图

▲ 主楼A-A剖面图

▲ 客房一层平面图

▲ 客房二层平面图

▲ 客房剖面图B-B
项目区位:印度,北安恰尔邦
建筑面积:1160平方米
建筑设计:Zowa Architects
领导建筑师:Pradeep Kodikara, Jineshi Samaraweera
项目建筑师:Kshitij Agarwal
工程师:Harsh Kakar
钢桁架设计:Swati Structure Solution pvt ltd
制造商:Jaguar
项目摄影:Aksha Sharma
项目时间:2017年
好设计网 www.haoooo.cn 欢迎投稿:infohaoooo@163.com
好设计网 www.haoooo.cn欢迎投稿:infohaoooo@163.com
